Paritalo 5h+k+s+khh+uima-allas+at+v

Hietamäentie 3, Olari, Espoo

Hinta
595 000 €

Koko
234.0 m²

Vuosi
1975

Tervetuloa tutustumaan tilavaan yksitasoiseen paritalohuoneistoon Olarin Lystinmäessä!

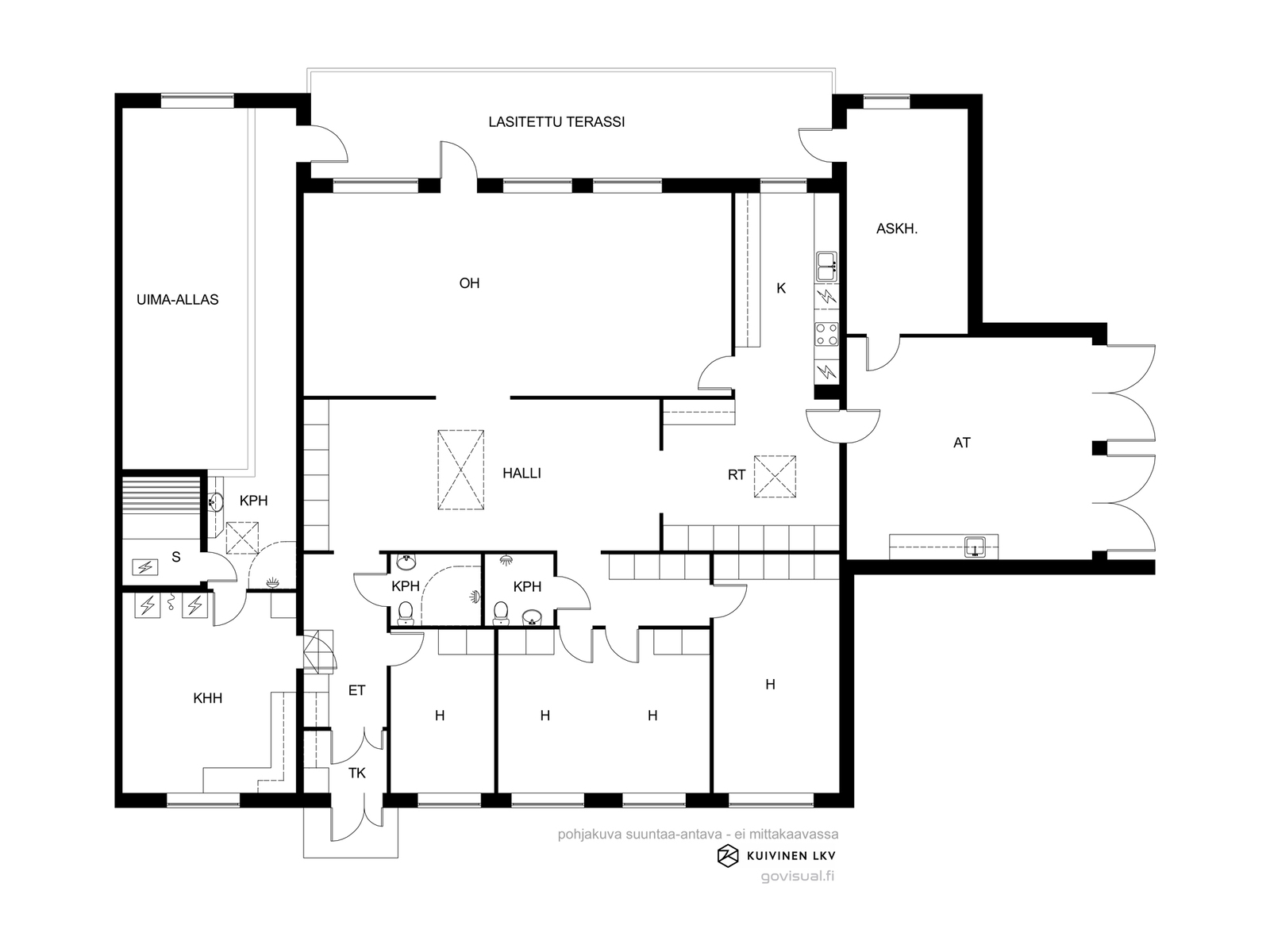
Tässä kodissa on loistava ja muunneltava pohjaratkaisu, joka sopii hyvin myös suuremmallekin perheelle.
Valoisa ja avara olohuone tarjoaa runsaasti tilaa yhdessäoloon, ja sieltä on käynti koko huoneiston levyiselle upealle lasitetulle terassille, sekä omalle suojaisalle pihalle, jossa on hyvin tilaa puuhastella puutarhanhoidon parissa.

Tyylikäs Juvin täyspuinen keittiö yhdistyy luontevasti ruokailutilaan, jossa on hyvin tilaa perheen ja ystävien yhteisiin hetkiin. Erillinen kirjastohuone toimii tarvittaessa myös työ- tai vierashuoneena ja valoa tilaan tuo ihana kattoikkuna.

Asunnossa on tällä hetkellä kolme makuuhuonetta, mutta pohjaratkaisu mahdollistaa jopa viiden makuuhuoneen toteuttamisen pienin muutoksin. Perheen pyykkihuolto sujuu jouhevasti omassa tilavassa kodinhoitohuoneessa ja oman saunan löylyissä on ihana rentoutua. Tässä kodissa on myös ihana uima-allasosasto, joka tarjoaa mahdollisuuden toteuttaa upea kotikylpylä remontoimalla. Lisäksi tästä kodista löytyy myös monen unelma, nimittäin oma autotalli ja tilava varasto/askarteluhuone, johon on käynti autotallin kautta.

Rauhallinen sijainti Olarissa, hyvät kulkuyhteydet ja edulliset asumiskustannukset tekevät tästä kodista erinomaisen vaihtoehdon suuremmallekin perheelle.

Asuntoa on vuosien varrella modernisoitu, mutta nyt on kuitenkin uusien omistajien aika tehdä tästä unelmien koti itselleen. Talo on kuntotarkastettu.

Parhaiten pääset tutustumaan tähän kotiin sopimalla kanssani yksityisesittelyn sinulle sopivaan aikaan.

Lisätiedot ja esittelyt:

Maria Kuivinen
Kiinteistönvälittäjä, LKV, LVV, MuM
maria@kuivinenlkv.fi
0445746727

Yhteystiedot
  • Maria Kuivinen
  • KUIVINEN LKV Oy
  • maria@kuivinenlkv.fi
  • 044 5746 727
Maria Kuivinen

Kohdenumero20431575
Sijainti
  • Olari
  • Hietamäentie 3
  • 02200
  • Espoo
TyyppiParitalo
HallintamuotoAsunto-osakeyhtiö
OmistusmuotoOma
Huoneistoselitelmä5h+k+s+khh+uima-allas+at+v
Asuinpinta-ala m²234 m²
Yhteensä m²279 m²
Pinta-alan perusteYhtiöjärjestyksen mukainen, isännöitsijäntodistuksen mukainen
Kerros1
Kerroksia1
Rakennusvuosi (päättynyt)1975
Käyttöönottovuosi1975
VapautuminenSopimuksen mukaan

Velaton hinta595 000 €
Myyntihinta595 000 €
Yhtiövastike270,00 €
Vesimaksu
  • oma mittari
Lisätietoja maksuistaAsunnon toteutunut sähkönkulutus noin 20.000kWh/vuosi ja keskimäärin 185 euroa/kk Sisältäen kaiken taloussähkön.

Sauna
  • oma sauna
Asuntoon kuuluu
  • Autopaikka: autotalli
YleiskuntoTyydyttävä
Lisätietoa kunnostaSiistikuntoinen koti, joka kaipaa päivittämistä.
Toimeksiantajan aikana huoneistoon tehdyt toimenpiteet sekä niiden ajankohtaHuoneistoon tehdyt remontit: 11/2024 Uusi ilmalämpöpumppu (ILP) / Kodinhoitohuone 11/2024 Vanhan ILP:n (2018) viimeisin huolto 11/2024 Kausivaloille ulkopistorasia pääovelle 12/2024 Asunnon 12 patterista 8 on uusittu vuosina 2000-2022; viimeisenä MH:een patteri uusittu 11/2022 Sähkötaululle ajastusmahdollisuus seuraaville: Patterit, lattialämmitys, varaaja + 1 varalle 11/2022 Kiinteistön ulkovalojen kellokytkin uusittu (ajastin) 05/2022 Kiukaan vastukset vaihdettu, kiuaskivet uusittu 02/2020 Asennettu Verisure-hälytysjärjestelmä 09/2019 Pihan kunnostus (ml. pylväsvalaisin alapihalle) 09/2019 Kausivaloille ulkopistorasiat sisäpihalle 09/2019 Loisteputket uusittu LED-putkiksi 01/2019 Terassi lasitettu (liukulasit; aik. katettu avoterassi) 10/2018 Kodinhoitohuoneen ja autotallin kaapistot ja kivitasot 02/2018 Putkiremontti (käyttövesi) 02/2018 llmalämpöpumppu / Olohuone 09/2017 Poistoilmajärjestelmän puhdistus, mittaus, säätö 09/2017 Saunaremontti (uudet lauteet, uusi kiuas) • ml. saunan ja uima-allashuoneen lattiaan uusi lattialämmitys ja lattian laatoitus, • Uima-allas tyhjennetty 02/2017 Viemärit tutkittu ja kuvattu 03/2016 Lämminvesivaraaja uusittu 09/2013 Uima-allaspumppu uusittu 12/2008 Sisätilojen (3 kpl) kattoikkunat uusittu vv. 2000-2008 04/2008 Lattian hionta OH, K ja halli 05/2008 Keittiöremontti 06/2008 Seinät tapetoitu, katot maalattu 05/2005 Huopakate ja katto pellit uusittu (ml. kattoikkunoiden tiivisteet), samassa yhteydessä terassin kattoon laitettu 2 kattoikkunaa 03/2003 1 ikkunan (lämpölasi) uusiminen 12/2001 Sisäseinät ja katot maalattu, lattia hiottu 11/2000 Ikkunoiden peruskorjaus (18 kpl lämpölasit uusittu) 08/1998 Kph:t remontoitu ja uima-allashuoneen seinät ja lattia laatoitettu sekä sauna uusittu.
Lämmitysjärjestelmän kuvausSähkö, ilmalämpöpumppu
Videoesittelyt

Asunnon tilat ja materiaalit
  • Pääasiallinen rakennusmateriaali: tiili
Katto
  • Tasa
  • Huopa
Keittiön kuvaus
  • Juvin täyspuinen keittiö. Lattia tammilautaa
  • Lattiamateriaalit: lauta
  • Seinämateriaalit: kaakeli
  • Työtaso: kivi
  • Varusteet: astianpesukone, liesituuletin / hormi
  • Liesi: sähköliesi
  • Jääkaappi ja pakastin: jääkaappi
Kylpyhuoneen kuvaus
  • Lattiamateriaalit: laatta
  • Seinämateriaalit: kaakeli
  • Varusteet: lattialämmitys
  • Kaksi erillistä kylpyhuonetta, joista yksi uima-altaan yhteydessä, siellä suihkukaappi. Toisessa kylpyhuoneessa poreamme ja wc.
WC-tilojen kuvaus
  • Kolmannessa kylpyhuoneessa wc ja suihku, joka ei ole tällä hetkellä käytössä.
  • Lattiamateriaalit: laatta
  • Seinämateriaalit: kaakeli
Saunan kuvaus
  • Lattiamateriaalit: laatta
  • Seinämateriaalit: puu
Kodinhoitohuoneen kuvaus
  • Erillinen tilava kodinhoitohuone, jossa pesukoneliitäntä. Lattia parkettia ja laattaa, laatta pesukoneen alla.
  • Lattiamateriaalit: muu
  • Seinämateriaalit: maalattu
  • Varusteet: pesukoneliitäntä
Olohuoneen kuvaus
  • Lattiamateriaalit: parketti
  • Seinämateriaalit: tapetti
Makuuhuoneiden kuvaus
  • Lukumäärä: 4
  • Lattiamateriaalit: parketti
  • Seinämateriaalit: tapetti

Taloyhtiön nimiAsunto osakeyhtiö Peltoniemi
Isännöitsijän yhteystiedotKalevi Kotajärvi
Autotallipaikkoja2
Tontin pinta-ala2193 m²
Tontin omistusOma

PäiväkotiKansainvälinen päiväkoti 250m Lystimäen päiväkoti 800m
KoulutOlarin koulu 1.4 km Päivänkehrän koulu 1,4 km